BANDAR BUKIT RAJA, KLANG
Wason Industrial Properties Sdn. Bhd.
TENANTED
- Building 1
- Building 2
- Building 3
Block A
Land Details
| Type | Industrial Building |
|---|---|
| Address | No. 13, Persiaran Astana/KU2, Bandar Bukit Raja, 41050, Klang, Selangor |
| Property Title No. | 139763 |
| Daerah – Klang, Selangor | |
| Mukim – Kapar | |
| Land Area | 25,868.00 m2 (Total approx. 6.4 acres) |
| Ground floor (Factory & Warehouse) | 4301.00 m2 |
| Ground floor (Office) | 88.00 m2 |
| Mezzanine floor (Office) | 142.80 m2 |
| First floor (Office) | 328.50 m2 |
| Second floor (Office) | 605.10 m2 |
| Guard House & Refuse Chamber | 20.50 m2 |
| Total Covered Area | 5485.90 m2 (Approx. 59,055.71 sq. ft.) |
Building Facilities
- Entrance : Steel gate with wiring only (Tenant can change it to auto gate)
- Telephone : Incoming DB connected to high riser on every floor
- Fire Fighting : Equipment with hose reel, hydrants and pump house with sprinklers and fire extinguishers
- Eaves Height : 12m
- Loading Bay : 6 units with dock leveller
- Floor Loading : 3000kg/m2 (Warehouse)
- Floor Flatness : Category 2 (floor profile measurement using Dipstick)
- Air Conditioning : Electrical points and condensate pipes only
- Electricity Supply : Incoming 600 amps
- Lift : Passenger lift for 5 people to every floor
Contact
Block B
Land Details
| Type | Industrial Building |
|---|---|
| Address | No. 13, Persiaran Astana/KU2, Bandar Bukit Raja, 41050, Klang, Selangor |
| Property Title No. | 139763 |
| Daerah – Klang, Selangor | |
| Mukim – Kapar | |
| Land Area | 25,868.00 m2 (Total Approx. 6.4 acres) |
| Ground floor (Factory & Warehouse) | 4301.00 m2 |
| Ground floor (Office) | 88.00 m2 |
| Mezzanine floor (Office) | 150.40 m2 |
| First floor (Office) | 328.50 m2 |
| Second floor (Office) | 733.70 m2 |
| Guard House & Refuse Chamber | 20.50 m2 |
| Total Covered Area | 5622.10 m2 (Approx. 60,521.91 sq. ft.) |
Building Facilities
- Entrance : Steel gate with wiring only (Tenant can change it to auto gate)
- Telephone : Incoming DB connected to high riser on every floor
- Fire Fighting : Equipment with hose reel, hydrants and pump house with sprinklers and fire extinguishers
- Eaves Height : 12m
- Loading Bay : 6 units with dock leveller
- Floor Loading : 3000kg/m2 (Warehouse)
- Floor Flatness : Category 2 (floor profile measurement using Dipstick)
- Air Conditioning : Electrical points and condensate pipes only
- Electricity Supply : Incoming 600 amps
- Lift : Passenger lift for 5 people to every floor
Contact
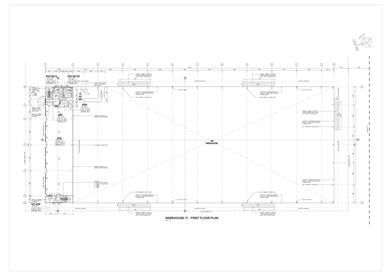
Block C
Land Details
| Type | Industrial Building |
|---|---|
| Address | No. 13, Persiaran Astana/KU2, Bandar Bukit Raja, 41050, Klang, Selangor |
| Property Title No. | 139763 |
| Daerah – Klang, Selangor | |
| Mukim – Kapar | |
| Land Area | 25,868.00 m2 (Total approx. 6.4 acres) |
| Ground floor (Factory & Warehouse) | 4301.00 m2 |
| Ground floor (Office) | 88.00 m2 |
| Mezzanine floor (Office) | 142.80 m2 |
| First floor (Office) | 328.50 m2 |
| Second floor (Office) | 605.10 m2 |
| Guard House & Refuse Chamber | 20.50 m2 |
| Total Covered Area | 5485.90 m2 (Approx. 59,055.71 sq. ft.) |
Building Facilities
- Entrance : Steel gate with wiring only (Tenant can change it to auto gate)
- Telephone : Incoming DB connected to high riser on every floor
- Fire Fighting : Equipment with hose reel, hydrants and pump house with sprinklers and fire extinguishers
- Eaves Height : 12m
- Loading Bay : 6 units with dock leveller
- Floor Loading : 3000kg/m2 (Warehouse)
- Floor Flatness : Category 2 (floor profile measurement using Dipstick)
- Air Conditioning : Electrical points and condensate pipes only
- Electricity Supply : Incoming 1200 amps
- Lift : Passenger lift for 5 people to every floor
Contact





