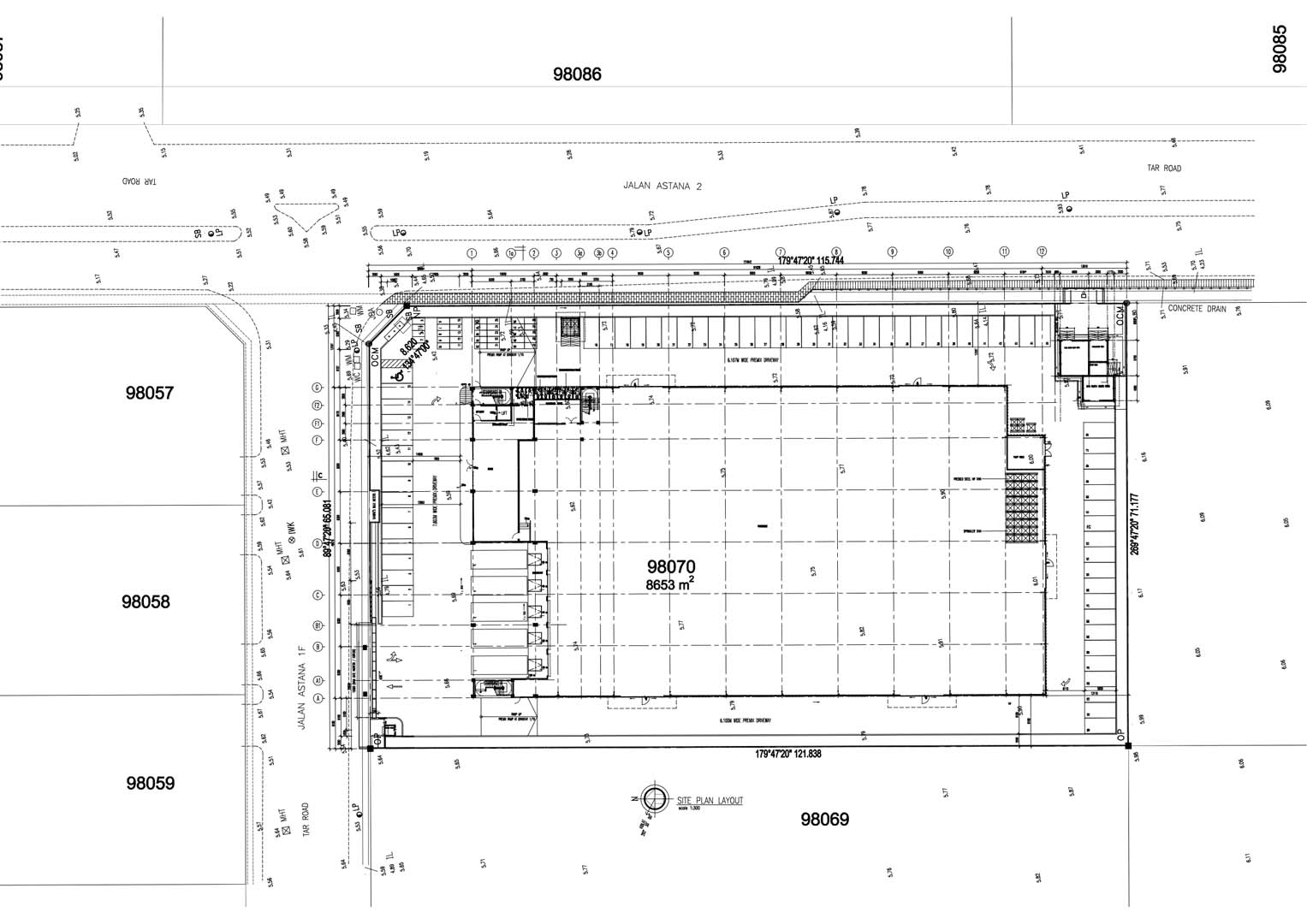
BANDAR BUKIT RAJA, KLANG

Sarak (Malaysia) Sdn. Bhd.

TENANTED

Land Details

TypeIndustrial Building
AddressNo. 1, Jalan Astana 1F/KU2, Bandar Bukit Raja, 41050, Klang, Selangor
Property Title No.139751
Daerah – Klang, Selangor
Mukim – Kapar
Land Area8654.00 m2 (Approx. 2.14 acres)
Ground floor (Factory & Warehouse)4097.82 m2
Ground floor (Office)227.33 m2
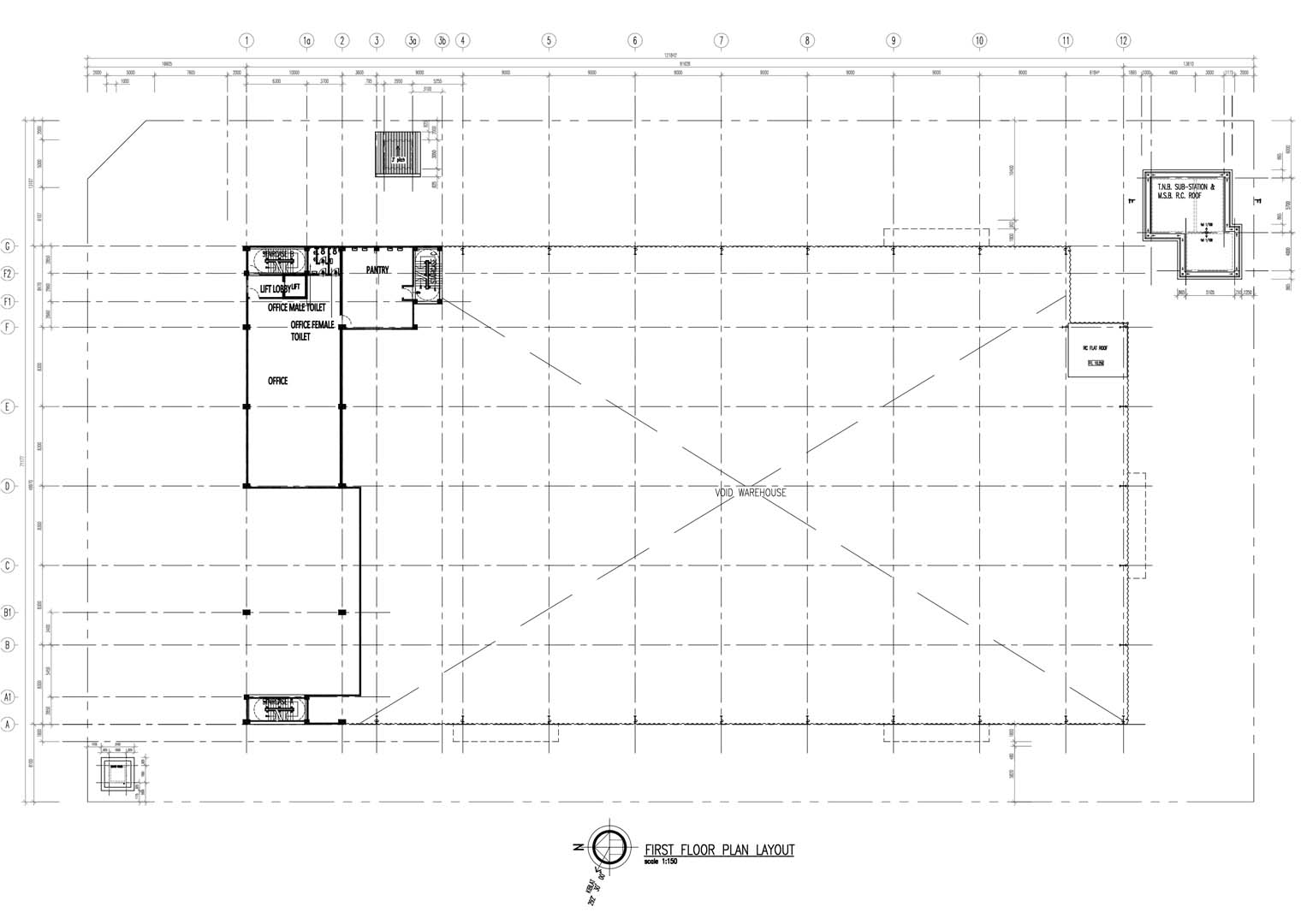
First floor (Office)358.74 m2
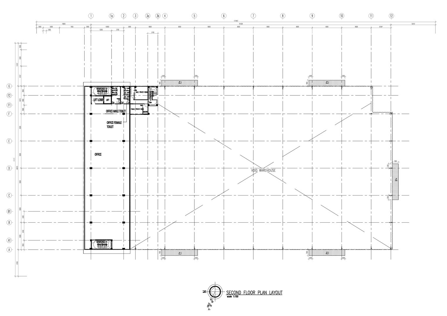
Second floor (Office)766.00 m2
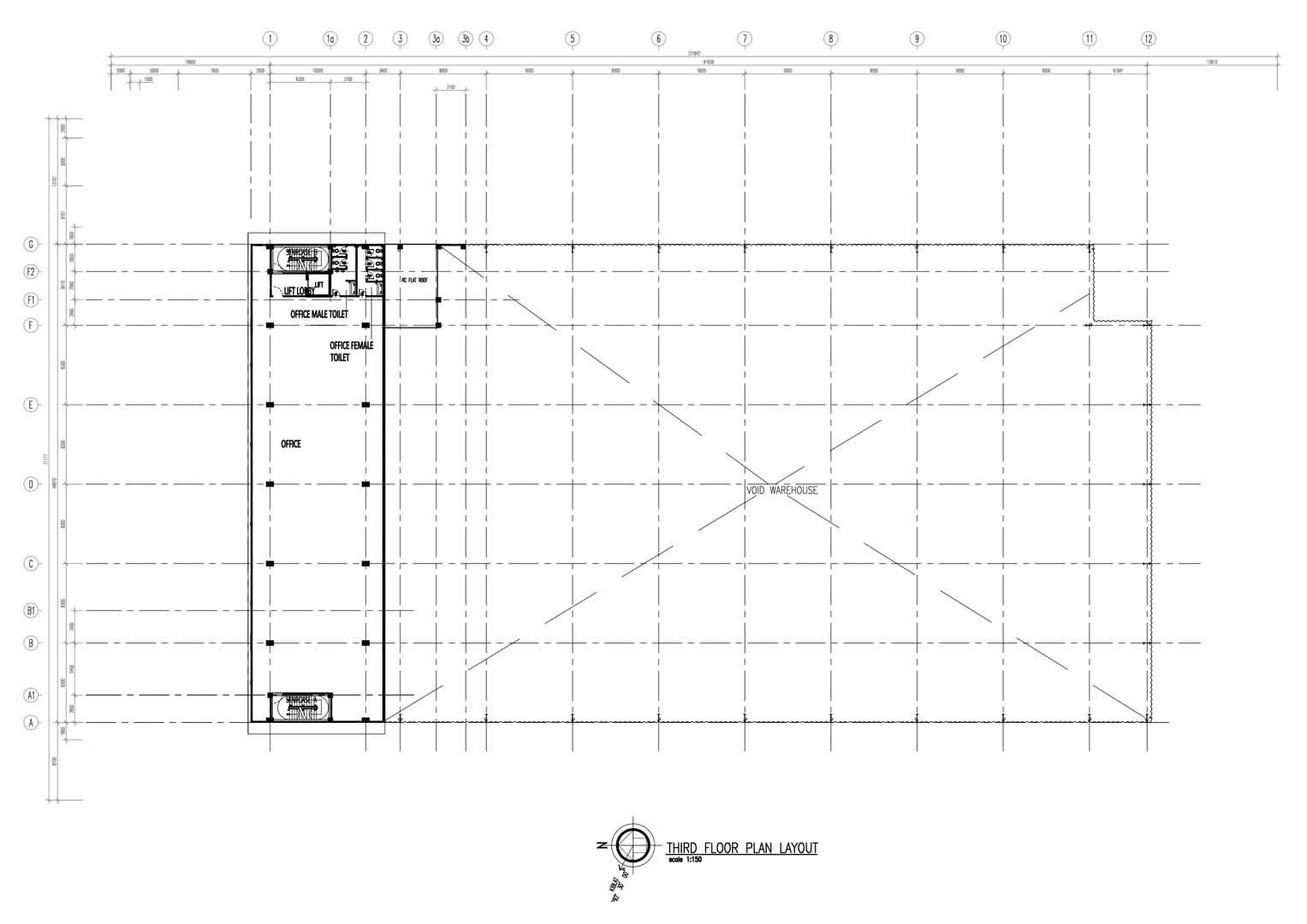
Third Floor (Office)699.58 m2
Guard House/Refuse Chamber/TNB & MSB Room79.78 m2
Total Covered Area6229.25 m2 (Approx. 67,057.77 sq. ft.)

Building Facilities

  1. Entrance : Steel gate with wiring only (Tenant can change it to auto gate)
  2. Telephone : Incoming DB connected to high riser on every floor
  3. Fire Fighting : Equipment with hose reel, hydrants and pump house with sprinklers and fire extinguishers
  4. Eaves Height : 12m
  5. Loading Bay : 5 units with dock leveller
  6. Floor Loading : 5000kg/m2 (Warehouse)
  7. Floor Flatness : Category 2 (floor profile measurement with Dipstick)
  8. Air Conditioning : Electrical points and condensate pipes only
  9. Electricity Supply : Incoming 1200 amps
  10. Lift : Passenger lift for 5 people to every floor

Contact

Building Layout